• Home
  • Over ons
  • Vakgebieden
  • Referenties
  • Contact

Ruimtelijke ordening

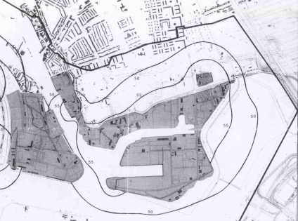
Bij het ontwikkelen of wijzigen van een nieuw ruimtelijk plan is het belangrijk rekening te houden met geluidbronnen en de mogelijke hinder of overlast daarvan voor mensen en eventueel natuurgebieden. Nieuwbouw kan niet altijd zonder voorwaarden binnen de invloedssfeer van industrieterrein, drukke weg of spoorlijn worden gerealiseerd. In natuurgebieden kan niet zondermeer een horecagelegenheid worden toegestaan.

In dergelijke bestemmingsplanprocedures ondersteunt en ontzorgt GeluidMeesters gemeenten, provincies, stedenbouwkundige bureaus en/of (project)ontwikkelaars. Bij dergelijke onderzoeken worden alle relevante geluidbronnen zoals industrie, wegen, spoorwegen en recreatie in kaart gebracht en getoetst. Het uiteindelijke doel: “een goed akoestisch woon-, werk- en leefklimaat voor alle belanghebbenden” wordt hierbij niet uit het oog verloren. Indien overige milieuaspecten als luchtkwaliteit, stank-, stof- en geurhinder en/of externe veiligheid mogelijke belemmeringen voor de plannen kunnen vormen worden deze door GeluidMeesters gesignaleerd. In dat geval bestaat de mogelijkheid deze aanvullende onderbouwing te laten uitzetten bij gespecialiseerde adviesbureaus waarmee GeluidMeesters samenwerken.

Voorbeelden van dergelijke situaties zijn:

wel scholen/ kinderdagverblijven in woonwijken, maar geen geluidhinder willen ondervinden van spelende kinderen (stemgeluid);
wel goede verkeerskundige ontsluiting van woonwijken via spoor en wegen, maar geen hinder willen ondervinden van verkeerslawaai;
wel uitgaansgelegenheden op korte afstand van woningen, maar geen geluidhinder van stemgeluid (terrasbezoekers) of muziekgeluid willen ondervinden uit cafés en/of discotheken;
wel supermarkten in woonwijken maar geen hinder van laad- losactiviteiten ondervinden.

De rapportage wordt standaard digitaal aangeleverd. Hierdoor kunnen de teksten en figuren makkelijk worden overgenomen in de bestemmingsplannen. Dit scheelt tijd en bovendien kunnen kleine wijzigingen makkelijk worden doorgevoerd. Indien u dit wenst worden papieren versies natuurlijk ook verstrekt.

Ruimtelijke ordening in Groningen?

GeluidMeesters B.V.
Rouaanstraat 7
9723 CA Groningen

Vraag hier vrijblijvend een offerte aan

Ruimtelijke ordening

Offerte aanvragen

Vraag vrijblijvend een prijs aan

Akoestisch onderzoek

  • Akoestisch onderzoek horeca, evenementen en muziek
  • Akoestisch onderzoek Milieuvergunning
  • Akoestisch onderzoek activiteitenbesluit
  • Akoestisch onderzoek bestemmingsplan
  • Akoestisch onderzoek bedrijf
  • Akoestisch onderzoek wegverkeer
  • Akoestisch onderzoek railverkeer
  • Akoestisch onderzoek gemeente

Diensten

  • Ruimtelijke ordening
  • Bedrijven en Industrie
  • Horeca en evenementen
  • Bouwlawaai
  • Agrarische bedrijven
  • Weg- en Railverkeer
  • Ondersteuning overheden
  • Geluid ARBO

Geluidmeting

  • Geluidmeting Horeca evenementen en muziek
  • Geluidmeting industrielawaai
  • Geluidmeting mileuvergunning
  • Onderzoek activiteitenbesluit
  • Onderzoek bestemmingsplan
  • Geluidmeting wegverkeer
  • Geluidmeting Railverkeer
  • Geluidmeting onderzoek bestemmingsplan
  • Geluidmeting onderzoek bedrijf
  • Geluidmeting gemeente

Service gebieden

  • Groningen
  • Friesland
  • Drenthe
  • Overijssel
  • Flevoland
  • Noord-Holland
  • Gelderland
  • Utrecht
  • Noord-Brabant
  • Zeeland
  • Zuid Holland
  • Limburg

Aa en Hunze, Achtkarspelen, Alkmaar, Almelo, Almere, Amersfoort, Amsterdam, Apeldoorn, Appingedam, Arnhem, Assen, Bedum, Borger-Odoorn, Breda, Coevorden, De Friese Meren, De Wolden, Delfzijl, Den Bosch, Den Haag, Den Helder, Deventer, Drachten, Dronten, Eemsmond, Eindhoven, Emmeloord, Emmen, Enschede, Franeker, Franekeradeel, Grootegast, Haarlem, Hardenberg, Haren, Harlingen, Heerenveen, Hengelo, Hof van Twente, Hoogeveen, Hoogezand, Hoogezand Sappemeer, Kampen, Leek, Leeuwarden, Lelystad, Loppersum, Marum, Meppel, Midden Drenthe, Nijmegen, Noordenveld, Noordoostpolder, Oldambt, Ommen, Ooststellingwerf, Opsterland, Raalte, Rotterdam, Slochteren, Smallingerland, Sneek, Stadskanaal, Staphorst, Steenwijk, Steenwijkerland, Tietjerksteradeel, Tilburg, Tynaarlo, Urk, Utrecht, Veendam, Westerveld, Weststellingwerf, Winschoten, Zaandam, Zuidhorn, Zuidwest-Friesland, Zwartewaterland, Zwolle

  • © 2026 GeluidMeesters. Alle rechten voorbehouden
  • Algemene voorwaarden DNR
Website door: Duracom